首页 返回 产业介绍

4.2MPa管网七氟丙烷

信息详细

  七氟丙烷自动灭火系统是集气体灭火、自动控制及火灾探测等于一体的现代化智能型自动灭火装置,本系统装置设计先进、性能可靠、操作简单、环保性良好。
  七氟丙烷在常温下是一种无色、无味、无污染、不导电、可低压液化贮存的气体灭火剂,其密度约为空气密度的6倍(其物理性能见表1),其分子式为CF3CHFCF3,商标名为HFC-227ea,国外称FM-200(其技术性能见表2),该灭火剂适用于全淹没灭火系统。当灭火剂喷至防护区后,灭火剂接触火焰或高温表面时分解产生活性自由基,该自由基夺取燃烧链锁反应中生成的活性物质,破坏燃烧过程中的链传递,最终达到灭火的目的,该种方式属于化学灭火,冷却、稀释或隔绝空气等物理作用极小。因其具有灭火效能高、对设备无污染、不破坏大气臭氧层等优点,是目前替代卤代烷灭火剂中的首选产品,现已在世界上许多国家和地区得到广泛的应用;在我国亦被公安部作为推荐使用的卤代烷替代品广泛应用于电力、水利、冶金、石油化工、电信、工矿企业、银行、民航系统等各种重要场所的防护,如计算机房、通讯机房、精密仪器室、理化实验室、发电机房、变电器、图书库、资料库、档案库、金库、采油平台、液压油库等可燃易燃液体房和易产生电器火灾危险的场所。
技术参数


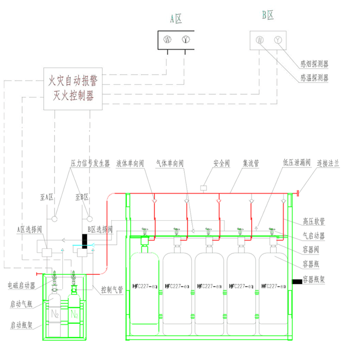
  七氟丙烷自动灭火系统由储存瓶组、储存瓶组架、液流单向阀、集流管、选择阀、三通、异径三通、弯头、异径弯头、法兰、安全阀、压力信号发送器、管网、喷嘴、药剂、火灾探测器、气体灭火控制器、声光报器、警铃、放气指示灯、紧急启动/停止按扭等组成。
1:单元独立系统
  指由一套灭火剂储存装置,保护一个防护区的系统形式,如图1所示


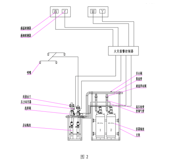
2:组合分配系统
  用一套管网七氟丙烷灭火剂储存装置通过多个选择阀的选择,保护多个(最多8个)防护区的系统形式。需不间断保护的防护区应考虑设主备瓶组自动转换的系统形式。如图2所示。


  七氟丙烷自动灭火系统具有自动、手动、机械应急操作三种启动方式。
  自动状态下,若某防护区发生有烟雾(或温度上升),该防护区的感烟(或感温)火灾探测器动作并向火灾报警控制器送入一个单一火警信号,控制器即进入单一火警状态,同时驱动电动警铃发出单一火灾报警信号,此时不会发出启动灭火系统的控制信号。随着该防护区火灾的蔓延,温度持续上升(或烟雾增大),另一回路的感温(或感烟)火灾探测器动作,向控制器送入另一个单一火警信号,控制器立即确认发生火灾,同时发出复合火灾报警信号及联动信号(关闭空调、送排风装置和防火阀,防火、防火卷帘等)。经过30秒时间的延时,控制器输出信号启动灭火系统,灭火剂经管网施放到该防护区实施灭火。控制器接受到压力信号器的反馈信号后显亮放气指示灯,避免人员误入。手动状态下,报警控制器在火灾发生时只发出火灾报警信号而不产生联动。
  自动或手动状态下,在值班人员确认火警后,按下报警控制器面板上的或现场的“紧急启动”按钮可马上启动灭火系统。在喷放控制信号输出前,按下报警控制器面板上或现场的“紧急停止”按钮,系统将不会输出喷放信号。


  在高温条件下,七氟丙烷发生物理反应和化学反应,分解出含氟的自由基,与燃烧过程中产生的支链反应的H+、OH-等活性自由基发生气相作用,中断燃烧链从而抑制燃烧反应,另外,七氟丙烷化学反应中的化学链断裂和气体过程中吸收大量的热量可冷却灭火。


电话: 076928828919
广东大地图南科技股份有限公司 版权所有 © Copyright 2017