在高温条件下,七氟丙烷发生物理反应和化学反应,分解出含氟的自由基,与燃烧过程中产生的支链反应的H+、OH-等活性自由基发生气相作用,中断燃烧链从而抑制燃烧反应,另外,七氟丙烷化学反应中的化学链断裂和气体过程中吸收大量的热量可冷却灭火。
七氟丙烷自动灭火系统具有自动、手动、机械应急操作三种启动方式。
自动状态下,若某防护区发生有烟雾(或温度上升),该防护区的感烟(或感温)火灾探测器动作并向火灾报警控制器送入一个单一火警信号,控制器即进入单一火警状态,同时驱动电动警铃发出单一火灾报警信号,此时不会发出启动灭火系统的控制信号。随着该防护区火灾的蔓延,温度持续上升(或烟雾增大),另一回路的感温(或感烟)火灾探测器动作,向控制器送入另一个单一火警信号,控制器立即确认发生火灾,同时发出复合火灾报警信号及联动信号(关闭空调、送排风装置和防火阀,防火、防火卷帘等)。经过30秒时间的延时,控制器输出信号启动灭火系统,灭火剂经管网施放到该防护区实施灭火。控制器接受到压力信号器的反馈信号后显亮放气指示灯,避免人员误入。手动状态下,报警控制器在火灾发生时只发出火灾报警信号而不产生联动。
自动或手动状态下,在值班人员确认火警后,按下电磁型悬挂式七氟丙烷灭火系统报警控制器面板上的或现场的“紧急启动”按钮可马上启动灭火系统。在喷放控制信号输出前,按下报警控制器面板上或现场的“紧急停止”按钮,系统将不会外贮压式七氟丙烷灭火系统是将七氟丙烷灭火剂以液态贮存于容器内,不采用氮气加压,贮存压力仅为灭火剂的饱和蒸汽压力,而作为灭火剂喷放动力的压缩气体则以较高的压力贮存在另外的容器内。系统工作时,高压动力气体通过减压阀减压后注入灭火剂贮存瓶中(同时容器瓶瓶头阀被打开),动力气体推动灭火剂(通过虹吸管、瓶头阀)沿管网系统高速向前运动、在防护区喷头处实施喷放灭火。 由于灭火剂和动力气分别贮存于不同的容器可以解决两个方面的问题:一是灭火剂贮存时没有和氮气接触,不会因采用氮气增压而产生气体溶解于灭火剂中;二是在系统启动后,灭火剂输送和喷放过程中的压力始终高于其贮存压力,不会出现灭火剂蒸汽和氮气析出的现象,有效地缓解了灭火剂在输送过程中双相流现象的产生。所以,灭火剂在输送过程中流态稳定,动力气体始终处于灭火剂的末端,推动液态的灭火剂在管路中以单相流体形式快速运动,其速度要比贮压式系统快且稳定,大大提高了管道输送灭火剂的能力,从而延长了输送距离,提高了灭火剂的喷放压力,实现了使用更细的管道输送更多的灭火剂。
平时灭火剂容器内的压力仅为灭火剂的饱和蒸汽压,容器的充装密度可大大提高;通过压力的调整和氮气量的配置,提高灭火剂喷嘴入口压力,可改善灭火剂的雾化效果,增强灭火剂的灭火效果。
因此,外贮压式七氟丙烷灭火系统具有以下诸多的优点:
1)灭火剂输送距离将大大提高,最远输送距离可达到200m,更适合于远距离输送和大空间防护区;
2)提高灭火剂容器的充装密度,最大充装密度为1249kg/m3,可更有效利用容器容积,减少设备投资和设备间面积;
3)输送管路管径相对较小,可减少管道投资;
4)可沿用已有的哈龙1301管网系统和设备间,仅更换设备即可改造成为洁净气体灭火系统;
5)喷嘴入口压力高,改善了灭火剂的雾化效果,缩短了灭火剂的喷放时间,能更加迅速灭火,提高灭火效率。
外贮压式七氟丙烷灭火系统特别适合于:
1)对哈龙1301系统进行改造,而不需要对原有管路进行修改;
2)大面积和大空间的气体灭火防护区;
3)钢瓶间与防护区之间距离较远的工程。 压式七氟丙烷灭火系统不是简单的将动力气贮存在另一个容器内或增加动力气体的贮存量,更重要的是如何在有效的时间内,充分利用动力气体的能量,使灭火剂得到更多的动力。
惠州市惠阳大地消防设备有限公司研究开发的压式七氟丙烷灭火系统具有缓慢开启功能的减压阀,既使动力气在一定的时间内恒压输出,其能量得到了充分利用,又能有效的避免了动力气体对灭火剂容器所构成的压力冲击。出喷放信号。
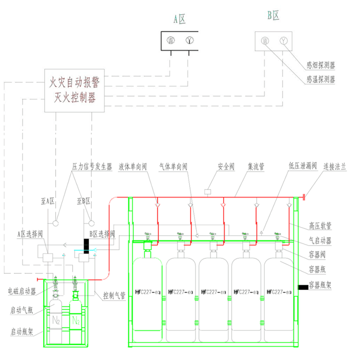
结构组成:
1.气体灭火控制器2.声光报警器3.火灾探测器4.放气指示灯5.紧急启停/手自动转换6.安全泄放阀7.压力信号发生器8.控制连接管9.集流管10.动力气连接管11.动力气瓶组12.灭火剂瓶组支架13.灭火剂单向阀14.灭火剂连接管15.启动气瓶组16.启动气瓶组支架17.灭火剂瓶组18.启动气体单向阀19.选择阀20.电磁启动器21.管网22.喷嘴
技术参数:
应用范围:
工作原理:
七氟丙烷自动灭火系统具有自动、手动、机械应急操作三种启动方式。 自动状态下,若某防护区发生有烟雾(或温度上升),该防护区的感烟(或感温)火灾探测器动作并向火灾报警控制器送入一个单一火警信号,控制器即进入单一火警状态,同时驱动电动警铃发出单一火灾报警信号,此时不会发出启动灭火系统的控制信号。随着该防护区火灾的蔓延,温度持续上升(或烟雾增大),另一回路的感温(或感烟)火灾探测器动作,向控制器送入另一个单一火警信号,控制器立即确认发生火灾,同时发出复合火灾报警信号及联动信号(关闭空调、送排风装置和防火阀,防火、防火卷帘等)。经过30秒时间的延时,控制器输出信号启动灭火系统,灭火剂经管网施放到该防护区实施灭火。控制器接受到压力信号器的反馈信号后显亮放气指示灯,避免人员误入。手动状态下,报警控制器在火灾发生时只发出火灾报警信号而不产生联动。
自动或手动状态下,在值班人员确认火警后,按下报警控制器面板上的或现场的“紧急启动”按钮可马上启动灭火系统。在喷放控制信号输出前,按下报警控制器面板上或现场的“紧急停止”按钮,系统将不会输出喷放信号。
在高温条件下,七氟丙烷发生物理反应和化学反应,分解出含氟的自由基,与燃烧过程中产生的支链反应的H+、OH-等活性自由基发生气相作用,中断燃烧链从而抑制燃烧反应,另外,七氟丙烷化学反应中的化学链断裂和气体过程中吸收大量的热量可冷却灭火。
七氟丙烷自动灭火系统具有自动、手动、机械应急操作三种启动方式。
自动状态下,若某防护区发生有烟雾(或温度上升),该防护区的感烟(或感温)火灾探测器动作并向火灾报警控制器送入一个单一火警信号,控制器即进入单一火警状态,同时驱动电动警铃发出单一火灾报警信号,此时不会发出启动灭火系统的控制信号。随着该防护区火灾的蔓延,温度持续上升(或烟雾增大),另一回路的感温(或感烟)火灾探测器动作,向控制器送入另一个单一火警信号,控制器立即确认发生火灾,同时发出复合火灾报警信号及联动信号(关闭空调、送排风装置和防火阀,防火、防火卷帘等)。经过30秒时间的延时,控制器输出信号启动灭火系统,灭火剂经管网施放到该防护区实施灭火。控制器接受到压力信号器的反馈信号后显亮放气指示灯,避免人员误入。手动状态下,报警控制器在火灾发生时只发出火灾报警信号而不产生联动。
自动或手动状态下,在值班人员确认火警后,按下电磁型悬挂式七氟丙烷灭火系统报警控制器面板上的或现场的“紧急启动”按钮可马上启动灭火系统。在喷放控制信号输出前,按下报警控制器面板上或现场的“紧急停止”按钮,系统将不会外贮压式七氟丙烷灭火系统是将七氟丙烷灭火剂以液态贮存于容器内,不采用氮气加压,贮存压力仅为灭火剂的饱和蒸汽压力,而作为灭火剂喷放动力的压缩气体则以较高的压力贮存在另外的容器内。系统工作时,高压动力气体通过减压阀减压后注入灭火剂贮存瓶中(同时容器瓶瓶头阀被打开),动力气体推动灭火剂(通过虹吸管、瓶头阀)沿管网系统高速向前运动、在防护区喷头处实施喷放灭火。 由于灭火剂和动力气分别贮存于不同的容器可以解决两个方面的问题:一是灭火剂贮存时没有和氮气接触,不会因采用氮气增压而产生气体溶解于灭火剂中;二是在系统启动后,灭火剂输送和喷放过程中的压力始终高于其贮存压力,不会出现灭火剂蒸汽和氮气析出的现象,有效地缓解了灭火剂在输送过程中双相流现象的产生。所以,灭火剂在输送过程中流态稳定,动力气体始终处于灭火剂的末端,推动液态的灭火剂在管路中以单相流体形式快速运动,其速度要比贮压式系统快且稳定,大大提高了管道输送灭火剂的能力,从而延长了输送距离,提高了灭火剂的喷放压力,实现了使用更细的管道输送更多的灭火剂。
平时灭火剂容器内的压力仅为灭火剂的饱和蒸汽压,容器的充装密度可大大提高;通过压力的调整和氮气量的配置,提高灭火剂喷嘴入口压力,可改善灭火剂的雾化效果,增强灭火剂的灭火效果。
因此,外贮压式七氟丙烷灭火系统具有以下诸多的优点:
1)灭火剂输送距离将大大提高,最远输送距离可达到200m,更适合于远距离输送和大空间防护区;
2)提高灭火剂容器的充装密度,最大充装密度为1249kg/m3,可更有效利用容器容积,减少设备投资和设备间面积;
3)输送管路管径相对较小,可减少管道投资;
4)可沿用已有的哈龙1301管网系统和设备间,仅更换设备即可改造成为洁净气体灭火系统;
5)喷嘴入口压力高,改善了灭火剂的雾化效果,缩短了灭火剂的喷放时间,能更加迅速灭火,提高灭火效率。
外贮压式七氟丙烷灭火系统特别适合于:
1)对哈龙1301系统进行改造,而不需要对原有管路进行修改;
2)大面积和大空间的气体灭火防护区;
3)钢瓶间与防护区之间距离较远的工程。 压式七氟丙烷灭火系统不是简单的将动力气贮存在另一个容器内或增加动力气体的贮存量,更重要的是如何在有效的时间内,充分利用动力气体的能量,使灭火剂得到更多的动力。
惠州市惠阳大地消防设备有限公司研究开发的压式七氟丙烷灭火系统具有缓慢开启功能的减压阀,既使动力气在一定的时间内恒压输出,其能量得到了充分利用,又能有效的避免了动力气体对灭火剂容器所构成的压力冲击。出喷放信号。
结构组成:
1.气体灭火控制器2.声光报警器3.火灾探测器4.放气指示灯5.紧急启停/手自动转换6.安全泄放阀7.压力信号发生器8.控制连接管9.集流管10.动力气连接管11.动力气瓶组12.灭火剂瓶组支架13.灭火剂单向阀14.灭火剂连接管15.启动气瓶组16.启动气瓶组支架17.灭火剂瓶组18.启动气体单向阀19.选择阀20.电磁启动器21.管网22.喷嘴
技术参数:
应用范围:
工作原理:
七氟丙烷自动灭火系统具有自动、手动、机械应急操作三种启动方式。 自动状态下,若某防护区发生有烟雾(或温度上升),该防护区的感烟(或感温)火灾探测器动作并向火灾报警控制器送入一个单一火警信号,控制器即进入单一火警状态,同时驱动电动警铃发出单一火灾报警信号,此时不会发出启动灭火系统的控制信号。随着该防护区火灾的蔓延,温度持续上升(或烟雾增大),另一回路的感温(或感烟)火灾探测器动作,向控制器送入另一个单一火警信号,控制器立即确认发生火灾,同时发出复合火灾报警信号及联动信号(关闭空调、送排风装置和防火阀,防火、防火卷帘等)。经过30秒时间的延时,控制器输出信号启动灭火系统,灭火剂经管网施放到该防护区实施灭火。控制器接受到压力信号器的反馈信号后显亮放气指示灯,避免人员误入。手动状态下,报警控制器在火灾发生时只发出火灾报警信号而不产生联动。
自动或手动状态下,在值班人员确认火警后,按下报警控制器面板上的或现场的“紧急启动”按钮可马上启动灭火系统。在喷放控制信号输出前,按下报警控制器面板上或现场的“紧急停止”按钮,系统将不会输出喷放信号。